전기기사를 따기 위해선 전기기능사를 먼저 취득하는 것이 좋습니다. 전기기능사는 전기로 입문하기 위한 아주 기초적인 자격증으로써 1차 시험은 필기 2차 시험은 직접 도면을 통해서 직접 몸으로 전기회로를 제작하는 시험입니다. 한 번 어떻게 할지 알아보겠습니다.
전기기능사에 대한 간단한 소개
전기기능사 자체가 다른 기능사보다 많이 어려운 건 사실입니다. 비전공자들이 듣기에 너무나도 생소한 단어들이 많고 개념 또한 어렵기 때문입니다. 그 때문에 합격률도 필기 합격률 30%라서 다른 자격증에 비해서 많이 까다로운 시험인 건 분명합니다.
예를 들어 전압, 전류 이런 용어들도 일반 사람들에게 설명하라면 잘 모르고 심지어 전기공학전공의 사람들도 설명하라면 못하는 사람들도 많습니다.
잠시 설명드리자면 전기는 물의 흐름과 비슷하다고 생각하면 됩니다. 전압은 전기의 압력, 수압은 물의 압력입니다. 전압(V) 볼트를 높이(M) 미터로 바꿔보세요. 220M 폭포에서 물을 맞는 거와 22,900M에서 물을 맞는 거 중에 어떤 것이 더 타격이 클까요? 아마도 22,900M의 폭포에서 맞는 것이 더욱 아플 것입니다. 전류는 전기의 흐름, 물로 바꾸면 물의 흐름이라고 생각하면 편할 것입니다.
기능사를 취득하고 용어 정리를 확실하게 된다면 이런 설명을 남들에게 자신있게 하실 수 있고 훗날 전기기사를 넘볼 수 있게 됩니다.
전기기능사 필기시험 일정과 과목소개
2024년 전기기능사 필기시험 일정
참고로 산업수요 맞춤형(실업계) 고등학교 또는 인력개발원 같은 직업학교는 필기시험이 면제됩니다.
전기기능사 시험은 4회로 이루어진 시험입니다. 기능사에 따라 달마다 보는 상시시험이 있기 때문에 주의하셔야 합니다.
위에서 기술한 것과 같이 전기기능사는 이것보다 상위자격증인 전기산업기사, 전기기사와 많이 과목이 겹칩니다. 그 때문에 전기기능사를 잘 공부해 두면 전기기사를 공부할 때 남들보다 더욱 쉽게 공부할 수 있습니다.
전기기능사 필기시험 과목
전기이론 20문제
전기설비 20문제
전기기기 20문제
시간 되면 다 까먹는다고 하지만 공부할 때 되면 다 기억납니다. 제가 그 산증인입니다. 참고로 저는 전기산업기사를 공부하고 3~4년 뒤에 전기기사를 공부하고 합격했습니다. 하면 다 됩니다.
전기기사 기출 문제는 링크를 걸어놨으니 확인해 보시기 바랍니다.
전기기능사 실기시험 일정과 공부 방법
2024년 전기기능사 실기 시험 일정
전기기능사 실기시험은 작업형입니다. 그래서 이건 혼자 준비하기가 아주 힘듭니다. 벽에 전기장치를 설치하고 배선도 일일이 해야 하고 그거에 시퀀스에 대해서 기초적 지식을 알아야 합니다
그래서 비용이 조금 들더라도 학원에 등록하셔서 준비하는 것이 더 좋습니다. 때때로 학원에서 어떤 시험문제가 나올지 알아봐 주는 경우도 간혹 있기 때문에 학원을 다니는 것이 좋습니다.
![]() |
| 전기기능사 실기 채점 기준표 |
실기시험은 감점 기준이 정해져 있기 때문에 어느 점에서 감점 요인이 될지 아는 것도 중요합니다. 위에 감점 요인을 적어놨으니까 참고하시길 바래요.
하지만 저렇게 감점 요인들을 모두 통과하더라도 완성 후 기기가 작동하지 않는다면 그냥 바로 불합격입니다. 그래서 감점을 신경 쓰는 것도 중요하지만 작동이 잘되는 거에 올인을 하시기를 바랍니다.
![]() |
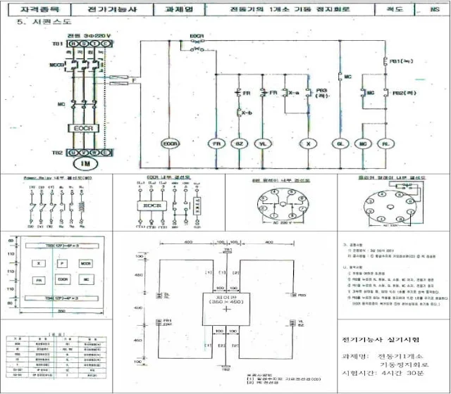
| 전기기능사 실기 도면 |
위에 실기 도면을 참고하여 아래처럼 나무 벽에 전기공사를 해내면 됩니다.
![]() |
| 실기시험 완성 사진 |
저 상태에서 가운데 전기기기에 시퀀스 프로그램을 집어넣은 후 버튼 동작에 따라서 작동되면 합격합니다. 저는 후에 전기산업기사, 전기기사를 취득해서 그 이후로 전기기능사는 쳐다보지 않았습니다.
전선, 버튼, 주름관을 제외하고 내가 사용해야 할 공구들은 스스로 챙겨야 합니다. 전동드릴, 스트리퍼, 만능 가위, 십자 드라이버, 테스터기가 필요합니다.
실기 응시료는 106,200원입니다. 작업형이고 자재가 필요한 것이기 때문에 응시료 자체가 조금 비쌉니다. 그러니 철저히 공부하고 시험에 임하시기를 바랍니다.
전기기능사의 진로
전기기능사의 취업은 사기업(EX : 변전소, 발전소, 전기공사업체, 기타건설업체) 취업 또는 공공기관의 취업이 쉬워집니다. 현대 사회에서 전기가 안 쓰이는 곳은 없기 때문에 전기기능사만 있어도 취업이 절대 어렵지 않습니다.
하지만 요즘에는 취업난으로 인해 기능사만 가지고 좋은 곳으로 취직하기는 몹시 어렵습니다. 전기기능사로 만족하지 마시고 부디 전기산업기사와 전기기사를 취득하시고 후에 여유가 되신다면 기술사까지 목표를 설정하시기를 바랍니다.
.jpg)



.jpg)
